Pipelife Teleskopbetäckning Polar T30 med galler 315 mm

Pipelife
5 296 kr
Finns i lager
Beställningsvara 1-2 veckor
Fåtal kvar i lager för omgående leverans
Beställningsvara 1-2 veckor

 150 dagars returrätt
Snabba leveranser
 Delbetala med SVEA ekonomi

Betala från per månadMer information


Artikelnummer: 60198

RSK-nummer: 7038168

Produktbeskrivning
Storleksguide

För dräneringsbrunn 400

Körbar 12,5 ton

Exklusive manschett

Material:

Ram = gråjärn

Lock = segjärn

 

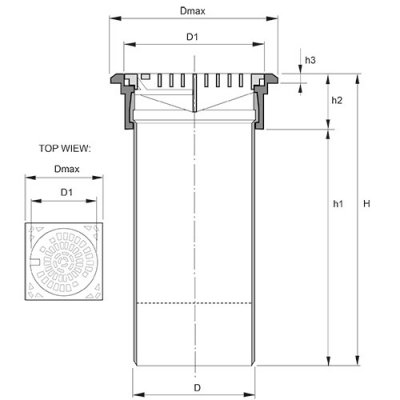
Dimensioner
D315 mm
D1355 mm
Dmax400 mm
H935 mm
h1815 mm
h2120 mm