Pipelife Grenrör 90° Infra allmuffad 200 mm

Pipelife
2 698 kr
Finns i lager
Beställningsvara 1-2 veckor
Fåtal kvar i lager för omgående leverans
Beställningsvara 1-2 veckor

 150 dagars returrätt
Snabba leveranser
 Delbetala med SVEA ekonomi

Betala från per månadMer information


Artikelnummer: 60160

RSK-nummer: 2414905

Produktbeskrivning
Storleksguide

Levereras exklusive tätningsringar

 

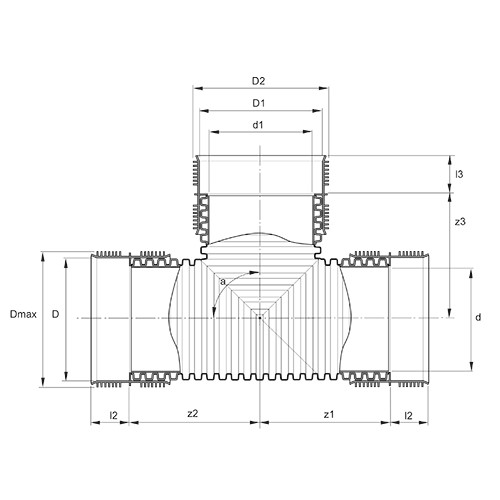
Dimensioner
D232 mm
D1232 mm
a90 °
Nettovikt3,3 kg